
Nabízíme vám prodej samostatného rodinného domu, který se nachází v klidné části obce Písty č.p. 123, okr. Nymburk.
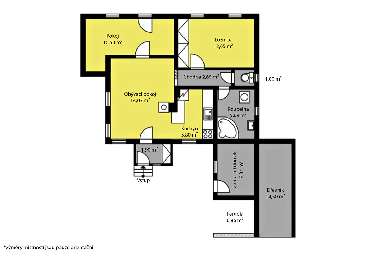
Na rovinatém oploceném pozemku o celkové výměře 1018 m2 s vjezdem z asfaltové obecní komunikace se nachází dům 3+kk s dílnou o celkové ploše cca 83,42 m2, dále dřevník, zahradní domek a bazén. Dům je postaven ze smíšeného zdiva, pórobetonových tvárnic, příčkovek a dřevěné konstrukce. Má vazníkovou pultovou střechu pokrytou trapézovým plechem a plastová okna. Z IS je dům napojen na el. energii, obecní vodovod a kanalizaci. Vytápění domu zajišťuje elektrický kotel, dalším zdrojem vytápění jsou krbová kamna. Ohřev TUV zajišťuje el. bojler. Původní stavba byla v roce 2008 rozšířena a modernizována.
Dům je v dobrém technickém stavu s možností dalšího rozšíření.
Dopravní obslužnost je zajištěna pravidelnými autobusovými spoji, vlakovými spoji z okresního města Nymburk vzdáleného 4 km, kde naleznete veškerou občanskou vybavenost.
Nemovitost lze financovat pomocí hypotéky, kterou Vám rádi pomůžeme vyřídit.
Neváhejte mi zavolat, ráda Vás nemovitostí provedu.
Jmenuji se Iva Mizlerová a již 15 let se pohybuji v oblasti realit. Moje vášeň pro tuto profesi pramení z touhy pomáhat lidem najít jejich vysněné domovy. Každý den se setkávám s různými příběhy a potřebami, což mě motivuje k tomu, abych byla co nejlepším průvodcem v tomto procesu.
Věřím, že každý klient si zaslouží individuální přístup a maximální péči. Mým cílem je nejen prodat nebo pronajmout nemovitost, ale také vytvořit příjemný a bezproblémový zážitek. Díky svým zkušenostem a znalostem trhu dokážu najít řešení, která vyhovují jak prodávajícím, tak kupujícím.
Jsem přesvědčena, že úspěch v realitách spočívá v důvěře a otevřené komunikaci. Proto se snažím budovat dlouhodobé vztahy s klienty, které přetrvávají i po uzavření obchodu. Každý úspěch mě motivuje k dalšímu růstu a zlepšování mých služeb.
Pokud hledáte partnera, který vám pomůže na vaší cestě k novému domovu, jste na správném místě. Těším se na spolupráci!