
Nabízíme vám prodej řadového domu, který se nachází v klidné části lázeňského města, přitom v blízkosti služeb a obchodů, na adrese Severní 1032, Poděbrady, okr. Nymburk.
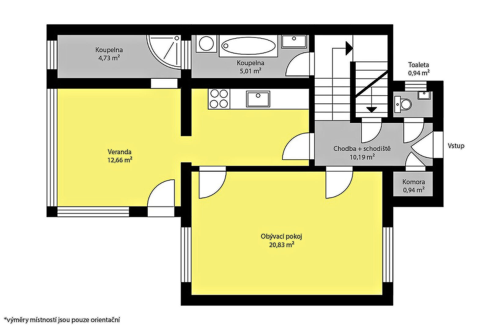
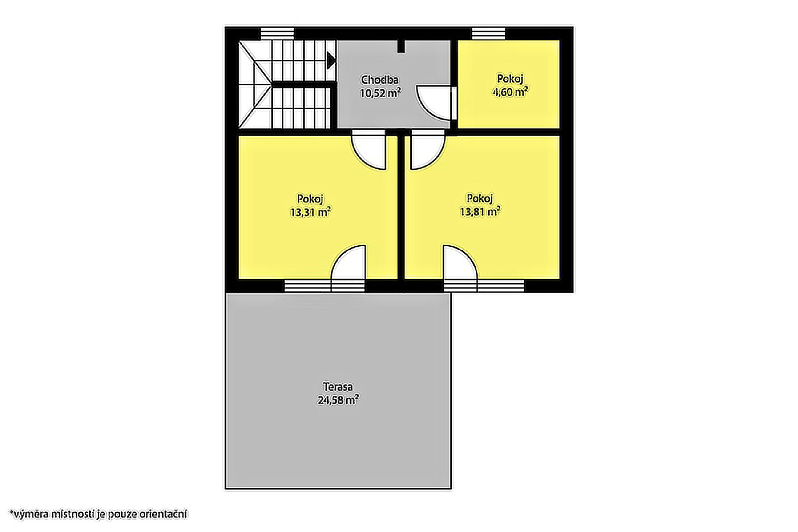
Na rohovém oploceném pozemku o celkové výměře 443 m2, stojí částečně podsklepený, řadový dům o celkové ploše cca 145 m2. Dům byl kolem roku 1970 rozšířen o jídelnu, druhou koupelnu a garáž, také došlo na výměnu oken za plastová. Dům je napojen na veškeré inženýrské sítě – el. energii, plynovod, obecní vodovod a kanalizaci. Vytápění domu zajišťuje plynový kotel, ohřev TUV el. bojler.
Dům je v původním stavu s možností dalšího rozšíření.
Poděbrady se nachází necelých 50 km východně od Prahy u dálnice D11. Město nabízí vše, co potřebujete pro kvalitní život rodiny. Dopravní obslužnost je zajištěna pravidelnými autobusovými a vlakovými spoji.
Nemovitost lze financovat pomocí hypotéky, kterou Vám rádi pomůžeme vyřídit.
Neváhejte mi zavolat, ráda Vás nemovitostí provedu.
Jmenuji se Iva Mizlerová a již 15 let se pohybuji v oblasti realit. Moje vášeň pro tuto profesi pramení z touhy pomáhat lidem najít jejich vysněné domovy. Každý den se setkávám s různými příběhy a potřebami, což mě motivuje k tomu, abych byla co nejlepším průvodcem v tomto procesu.
Věřím, že každý klient si zaslouží individuální přístup a maximální péči. Mým cílem je nejen prodat nebo pronajmout nemovitost, ale také vytvořit příjemný a bezproblémový zážitek. Díky svým zkušenostem a znalostem trhu dokážu najít řešení, která vyhovují jak prodávajícím, tak kupujícím.
Jsem přesvědčena, že úspěch v realitách spočívá v důvěře a otevřené komunikaci. Proto se snažím budovat dlouhodobé vztahy s klienty, které přetrvávají i po uzavření obchodu. Každý úspěch mě motivuje k dalšímu růstu a zlepšování mých služeb.
Pokud hledáte partnera, který vám pomůže na vaší cestě k novému domovu, jste na správném místě. Těším se na spolupráci!