Používáme cookies k optimalizaci našich webových stránek a našich služeb. Další informace o cookies najdete zde.

Nastavení


Prodej chaty, Železnice

Popis nemovitosti

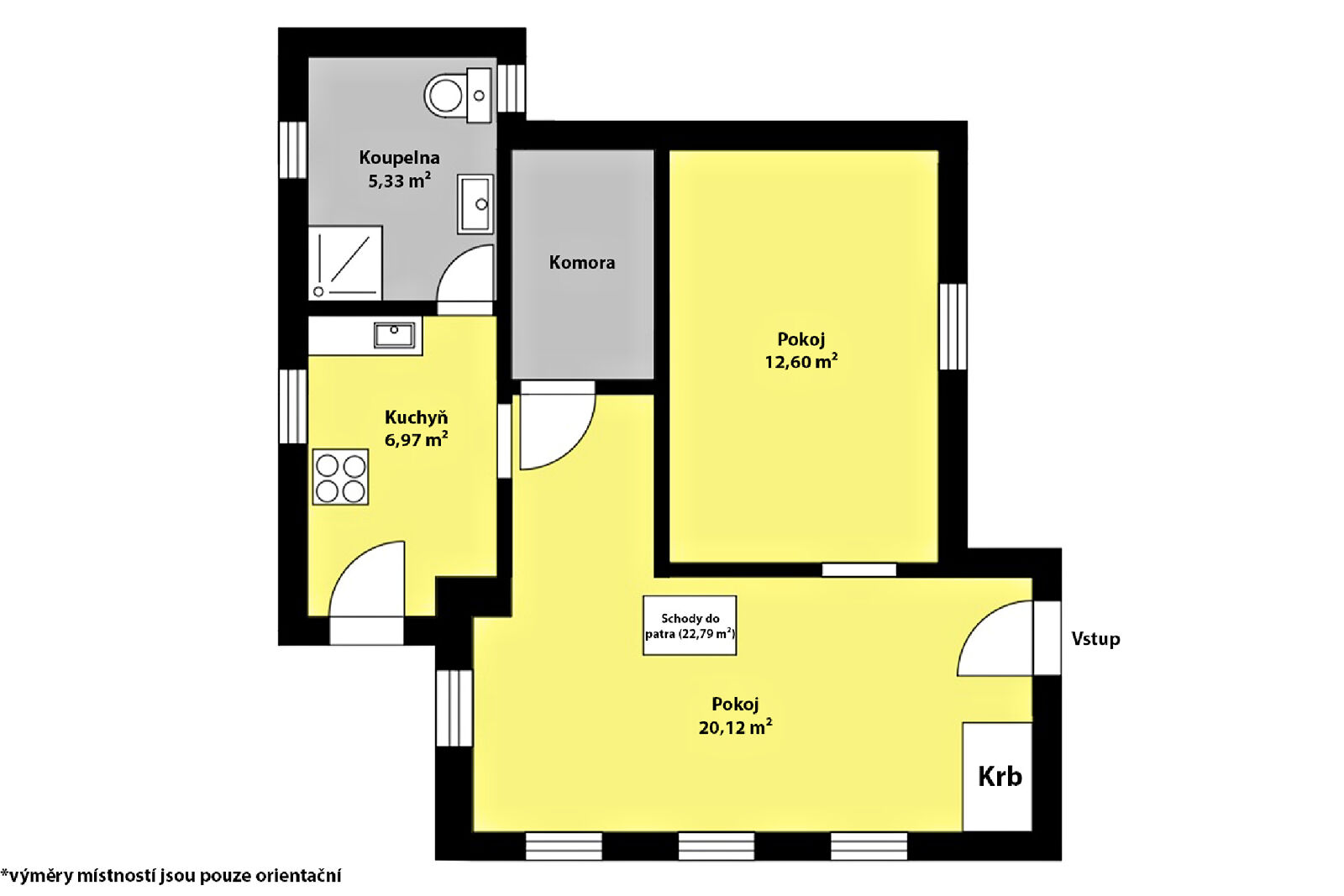
Nabízíme k prodeji rekreační objekt – chatu, která se nachází v malebné lokalitě Ulice U Habřiny č. e. 3, v části obce Železnice, okres Jičín. Tento samostatný přízemní objekt o zastavěné ploše 133 m² a užitné ploše 45 m² je umístěn na rozlehlé parcele o celkové ploše 1509 m². Chata s třemi pokoji nabízí možnost poklidného odpočinku v krásném a klidném prostředí, obklopeném přírodou v blízkosti lesa.

Objekt je určen k rekonstrukci, což dává příležitost novému majiteli k úpravám dle vlastních představ.
Chata je napojena na elektřinu s napětím 230 V, topení zajišťují kamna na tuhá paliva, ohřev teplé vody je elektrickým bojlerem, zdroj vody je z kopané studny a kanalizace je svedena do septiku.

Dostupnost je zajištěna jak vlakem, tak silničním spojením a autobusy, což umožňuje pohodlný přístup do okolních měst a přírodních lokalit.

Jedná se o ideální místo pro všechny, kteří hledají klid a souznění s přírodou. Chata je vhodná k rekreačním účelům, pro milovníky turistiky, houbaření či cyklovýletů.

V případě, že zájem o koupi nemovitosti projeví více klientů, se bude nemovitost prodávat formou aukce.

Neváhejte mi zavolat, ráda Vás nemovitostí provedu.

Iva Mizlerová

Jmenuji se Iva Mizlerová a již 15 let se pohybuji v oblasti realit. Moje vášeň pro tuto profesi pramení z touhy pomáhat lidem najít jejich vysněné domovy. Každý den se setkávám s různými příběhy a potřebami, což mě motivuje k tomu, abych byla co nejlepším průvodcem v tomto procesu.

Věřím, že každý klient si zaslouží individuální přístup a maximální péči. Mým cílem je nejen prodat nebo pronajmout nemovitost, ale také vytvořit příjemný a bezproblémový zážitek. Díky svým zkušenostem a znalostem trhu dokážu najít řešení, která vyhovují jak prodávajícím, tak kupujícím.

Jsem přesvědčena, že úspěch v realitách spočívá v důvěře a otevřené komunikaci. Proto se snažím budovat dlouhodobé vztahy s klienty, které přetrvávají i po uzavření obchodu. Každý úspěch mě motivuje k dalšímu růstu a zlepšování mých služeb.

Pokud hledáte partnera, který vám pomůže na vaší cestě k novému domovu, jste na správném místě. Těším se na spolupráci!


Iva Mizlerová

Kontaktní formulář

Stáhnout PDF